0

Coquette maison ancienne proche Senlis 8mn

Senlis (60300)
Réf : VMA10003970

Joli village à quelques minutes de Senlis, DeClip Immo vous présente une jolie maison complétemement rénovée composée sur son rez-de-chaussée, d'une entrée sur séjour (salon/salle à manger 31.75m²) avec poêle à bois, une cuisine entièrement aménagée équipée donnant sur une terrasse esprit patio, une chambre 14.35m² (ou 2ème salon), wc séparé et une salle d'eau. Les commodités de ce niveau permettent de vivre de plain-pied.

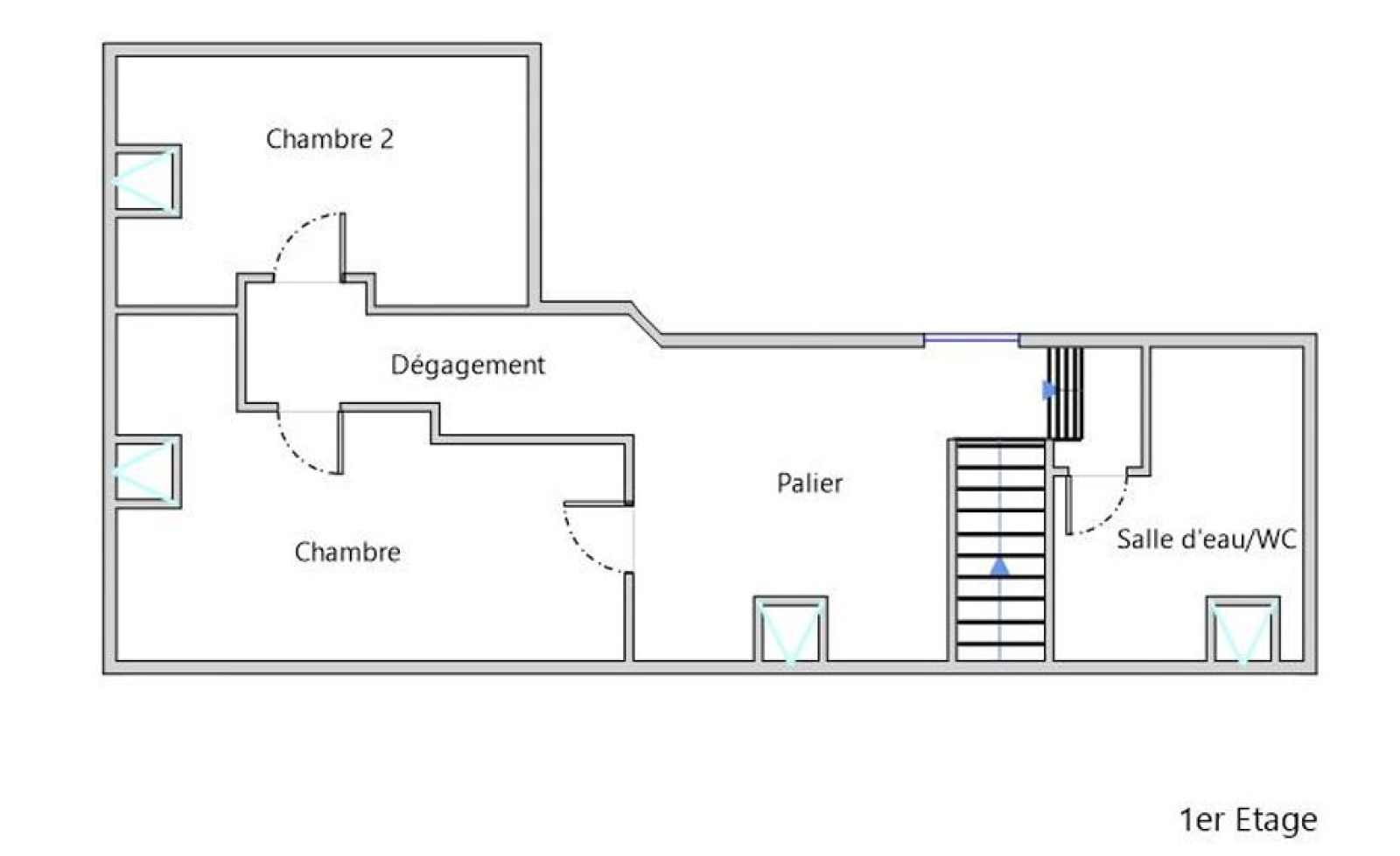
A l'étage, un palier avec espace dressing, 2 chambres, et salle d'eau avec wc.

Petit jardin intimiste très agréable avec terrasse et clos de murs anciens, belle cave à vins avec accès maison, garage avec grenier, et chalet de jardin.. Assainissemement aux normes, aucune anomalie électrique. L'ensemble est mesuré à 119.04m² au sol et 100.37m² en loi carrez. Proche forêt. Accès A1 en 5mn, gare pour Paris en 15mn. Ecole sur place - Tous commerces à 5mn de voiture.

Sandrine De Clippeleir 06 63 23 95 06

découvrir le bien
Prix du bien 349 000 €
Pièce(s) 5
Chambre(s) 3

Caractéristiques du bien

Caractéristiques Valeurs
Code postal 60300
Surface habitable (m²) 119,04 m²
surface terrain 214 m²
Surface loi Carrez (m²) 100,37 m²
Nombre de chambre(s) 3
Nombre de pièces 5
Nombre de niveaux 2
Nb de salle d'eau 2
Cuisine Séparée
Type de cuisine Equipée
Mode de chauffage Electrique
Type de chauffage Autre
Format de chauffage AUTRE
Terrasse OUI
Murs mitoyens 1
Nombre de garage 1
Année de construction 1850
Terrain piscinable NON

Infos financières

Caractéristiques Valeurs
Prix de vente 349 000 €
Les honoraires d'agence seront intégralement à la charge du vendeur  
Taxe foncière annuelle 770 €

Bilans énergétiques

DPE GES
Ce bien vous est proposé par
Ce bien vous intéresse ?
Fieldset par défaut
Fieldset par défaut
Validation

* Champs obligatoires

Contacter l'agence
Validation
Les informations recueillies sur ce formulaire sont enregistrées dans un fichier informatisé par La Boite Immo agissant comme Sous-traitant du traitement pour la gestion de la clientèle/prospects de l'Agence / du Réseau qui reste Responsable du Traitement de vos Données personnelles. La base légale du traitement repose sur l'intérêt légitime de l'Agence / du Réseau. Elles sont conservées jusqu'à demande de suppression et sont destinées à l'Agence / au Réseau. Conformément à la loi « informatique et libertés », vous disposez des droits d’accès, de rectification, d’effacement, d’opposition, de limitation et de portabilité de vos données. Vous pouvez retirer votre consentement à tout moment en contactant directement l’Agence / Le Réseau. Consultez le site https://cnil.fr/fr pour plus d’informations sur vos droits. Si vous estimez, après avoir contacté l'Agence / le Réseau, que vos droits « Informatique et Libertés » ne sont pas respectés, vous pouvez adresser une réclamation à la CNIL. Nous vous informons de l’existence de la liste d'opposition au démarchage téléphonique « Bloctel », sur laquelle vous pouvez vous inscrire ici : https://www.bloctel.gouv.fr Dans le cadre de la protection des Données personnelles, nous vous invitons à ne pas inscrire de Données sensibles dans le champ de saisie libre.
Ce site est protégé par reCAPTCHA, les Politiques de Confidentialité et les Conditions d'Utilisation de Google s'appliquent.