0

Maison en pierre NEUVE 3 chambres - séjour 53m²

Senlis (60300)
Réf : Mluc M2

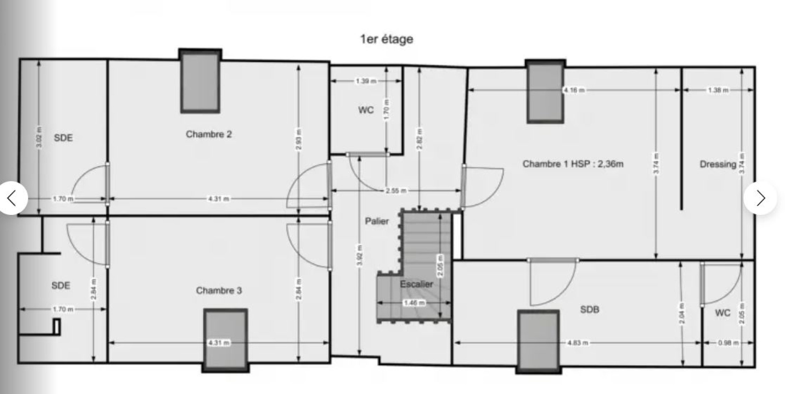
Village à l'Est de Senlis (10mn), maison complétement rénovée sur 2 niveaux comprenant un grand séjour de 47m² (chemniée possible), une cuisine (à aménager par vos soins), un espace technique avec une buanderie et wc séparé. A l'étage, le palier peut recevoir un bureau,wc séparé, 2 chambres avec leur salle d'eau, une suite parentale comprenant une salle de bains, wc séparé et dressing. La maison dispose d'une belle cave à vin. Parking pour 2 VL - Parcelle de 250m² avec terrain. Prestations neuves avec pompe à chaleur, adoucisseur et chauffage au sol au rez de chaussée. Maison très bien isolée et lumineuse. Bénéficiez de la décennale.

Prix 339 000€ honoraires charge vendeur

Interlocuteur pour ce bien : Luc De Clippeleir 06 20 78 13 36

(Agent commercial mandataire immatriculé au Registre Spécial des Agents Commerciaux (RSCA) du Tribunal de Commerce de Compiègne sous le n° 435177613 – Titulaire de la carte ADC 60032020000239640)

Prix du bien 339 000 €
Pièce(s) 6
Chambre(s) 3

Caractéristiques du bien

Caractéristiques Valeurs
Code postal 60300
Surface habitable (m²) 140 m²
surface terrain 250 m²
Nombre de chambre(s) 3
Nombre de pièces 6
Nombre de niveaux 2
Nb de salle de bains 1
Nb de salle d'eau 2
Cuisine Séparée
Mode de chauffage Pompe à chaleur
Type de chauffage Au sol
Format de chauffage Central
Interphone OUI
Murs mitoyens 2
Cave OUI
Année de construction 2017

Infos financières

Caractéristiques Valeurs
Prix de vente 339 000 €
Les honoraires d'agence seront intégralement à la charge du vendeur  

Bilans énergétiques

DPE GES
Ce bien vous est proposé par
Ce bien vous intéresse ?
Fieldset par défaut
Fieldset par défaut
Validation

* Champs obligatoires

Contacter l'agence
Validation
Les informations recueillies sur ce formulaire sont enregistrées dans un fichier informatisé par La Boite Immo agissant comme Sous-traitant du traitement pour la gestion de la clientèle/prospects de l'Agence / du Réseau qui reste Responsable du Traitement de vos Données personnelles. La base légale du traitement repose sur l'intérêt légitime de l'Agence / du Réseau. Elles sont conservées jusqu'à demande de suppression et sont destinées à l'Agence / au Réseau. Conformément à la loi « informatique et libertés », vous disposez des droits d’accès, de rectification, d’effacement, d’opposition, de limitation et de portabilité de vos données. Vous pouvez retirer votre consentement à tout moment en contactant directement l’Agence / Le Réseau. Consultez le site https://cnil.fr/fr pour plus d’informations sur vos droits. Si vous estimez, après avoir contacté l'Agence / le Réseau, que vos droits « Informatique et Libertés » ne sont pas respectés, vous pouvez adresser une réclamation à la CNIL. Nous vous informons de l’existence de la liste d'opposition au démarchage téléphonique « Bloctel », sur laquelle vous pouvez vous inscrire ici : https://www.bloctel.gouv.fr Dans le cadre de la protection des Données personnelles, nous vous invitons à ne pas inscrire de Données sensibles dans le champ de saisie libre.
Ce site est protégé par reCAPTCHA, les Politiques de Confidentialité et les Conditions d'Utilisation de Google s'appliquent.